EnvisionLab
News-Blog
30.12.2024
Umplanung & Sanierung eines EFH in Hilden, modernes Wohnen im Bestand. Vorhandene Innenwände werden entfernt, Wohnraum + Küche werden zusammengelegt und um 90 Grad, parallel zur […]
23.12.2024
Das Team von EnvisionLab dankt allen Partnern, Geschäftskunden, Freunden, Unterstützern und Wegbegleitern für die großartige Zusammenarbeit über das gesamte Jahr 2024 hinweg … … und wünscht […]
03.11.2024
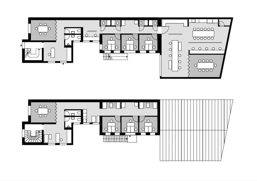
Zwischen 1902 und 1945 fungierten die Heilanstalten Hohenlychen als ein bedeutender Ort für die Behandlung von Tuberkulose. Der Großteil der finanziellen Mittel stammte aus privaten Spenden, […]
24.04.2024
Die EnvisionLab übernimmt ab März das Lübecker Büro PlanWerk. Die neu gegründete PlanWerk GmbH erweitert das EnvisionLab-Netzwerk als 100%ige Tochtergesellschaft. Mit diesem Schritt erweitern wir unsere […]
31.01.2024
Am 31.01.2024 fand der erste Stadtentwicklungsausschuss der Stadt Hilden im neuen Jahr statt. Hierbei werden regelmäßig als Tagesordnungspunkt im nicht öffentlichen Teil neue und ausgewählte Bauanträge […]
25.01.2024
Die neuen Büroräumlichkeiten In Leipzig befinden sich im Zentrum der Stadt Leipzig und sind Teil der Coworking-Flächen von SimpliOffice. Sie wurden am 25.01.2024 bezogen und werden […]
01.01.2024
Mit Datum vom 01.01.2024 hat das Architektur- und Ingenieurbüro EnvisionLab GmbH seine geschäftliche Tätigkeit mit den beiden Niederlassungen in Essen und Leipzig aufgenommen. Marco Decker und […]





